Trasformare il piano terra: esercizi di riuso negli spazi di soglia
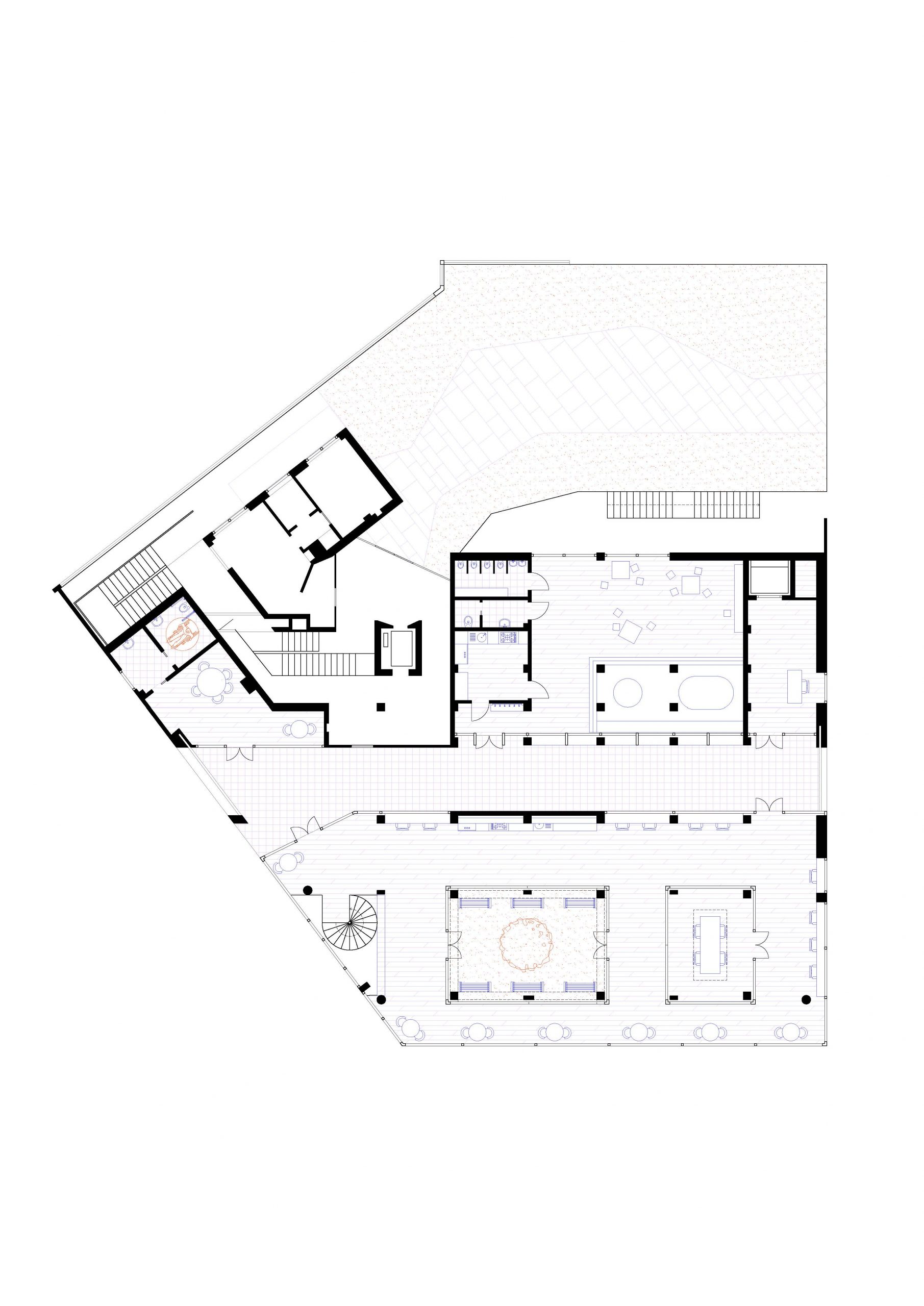
L’area di intervento occupa il piano terra dell’edificio per abitazioni, uffici e negozi che gli architetti Mario Asnago e Claudio Vender realizzano alla fine degli anni ‘50 nel quartiere Bande Nere di Milano. Il progetto realizzato lungo viale Caterina da Forlì si articola in due volumi distinti: un basamento commerciale di un piano e una torre residenziale di otto piani, di cui il primo destinato a uffici. Il basamento accoglie una galleria commerciale, illuminata tramite aperture a cielo aperto, e un livello interrato destinato ai magazzini. Questo ambiente di transizione, oltre a sottolineare il legame con lo spazio pubblico, funge da separazione tra la città e l’ingresso della torre residenziale[1]. L’edificio disegna la conclusione dell’angolo di un lotto residenziale che confina con l’asse di viale Caterina da Forlì con al centro un parco pubblico che segna la divisione con l’area a sud che ospita un complesso pubblico e uno privato, entrambi dedicati a servizi di cura (servizi medici).
L’intervento si è concentrato sugli spazi esistenti presenti al piano terra e al piano interrato dell’edificio per un totale di circa 800 mq, includendo anche la galleria come luogo dell’in-between progettuale. Le azioni consentite sull’esistente hanno riguardato interventi minimi come la rimozione di pareti interne non portanti, la rimozione o modifica delle scale a chiocciola di collegamento tra i vari spazi commerciali, la possibilità di ampliare o ridurre lo spazio della galleria per migliorare l’illuminazione.
Gli studenti, divisi in gruppi, si sono occupati in primo luogo di costruire una mappatura urbana delle principali attività presenti nelle aree limitrofe e dei loro tempi di utilizzo, per poter individuare un programma di attività in dialogo con quanto individuato. Ogni gruppo si è concentrato su una diversa idea di integrazione tra spazi di lavoro condiviso e attività di cura che ha determinato la strategia progettuale.
In conclusione, i diversi interventi rappresentano alcuni esempi di come il progetto di architettura possa rispondere alle esigenze sociali e culturali di una comunità, integrando la dimensione spaziale con quella della cura. L’approccio, che si articola attraverso una riorganizzazione degli ambienti esistenti, è finalizzato a promuovere un’interazione fluida tra differenti modalità di utilizzo, all’interno di un contesto in cui si intrecciano attività professionali, momenti di socialità e pratiche di cura. La galleria commerciale esistente diventa un dispositivo spaziale che funge da filtro tra la dimensione pubblica e quella privata, e che consente un passaggio diretto tra le diverse attività dell’edificio. Il concetto di cura inteso come principio di organizzazione e di relazione tra gli spazi e i loro abitanti emerge quale elemento cardine del progetto. La cura si esprime attraverso la progettazione di ambienti che rispondono alla necessità di equilibrio tra la vita lavorativa e quella familiare, creando spazi in cui il benessere fisico e psicologico degli utenti possa essere promosso attraverso un’organizzazione spaziale attenta alle interazioni sociali e alla sfera privata. In questa prospettiva, la riorganizzazione degli spazi, che includono attività come una cucina condivisa, l’asilo nido, i patii verdi, aree per lo sport, mira a facilitare l’emergere di pratiche collettive di cura e solidarietà.
L’edificio, pertanto, non si limita a essere un contenitore di attività, ma diventa un dispositivo attivo di trasformazione sociale, in grado di rispondere in modo innovativo e sensibile alle necessità di una comunità in evoluzione.
Michela Bassanelli









