La galleria come dispositivo spaziale di connessione
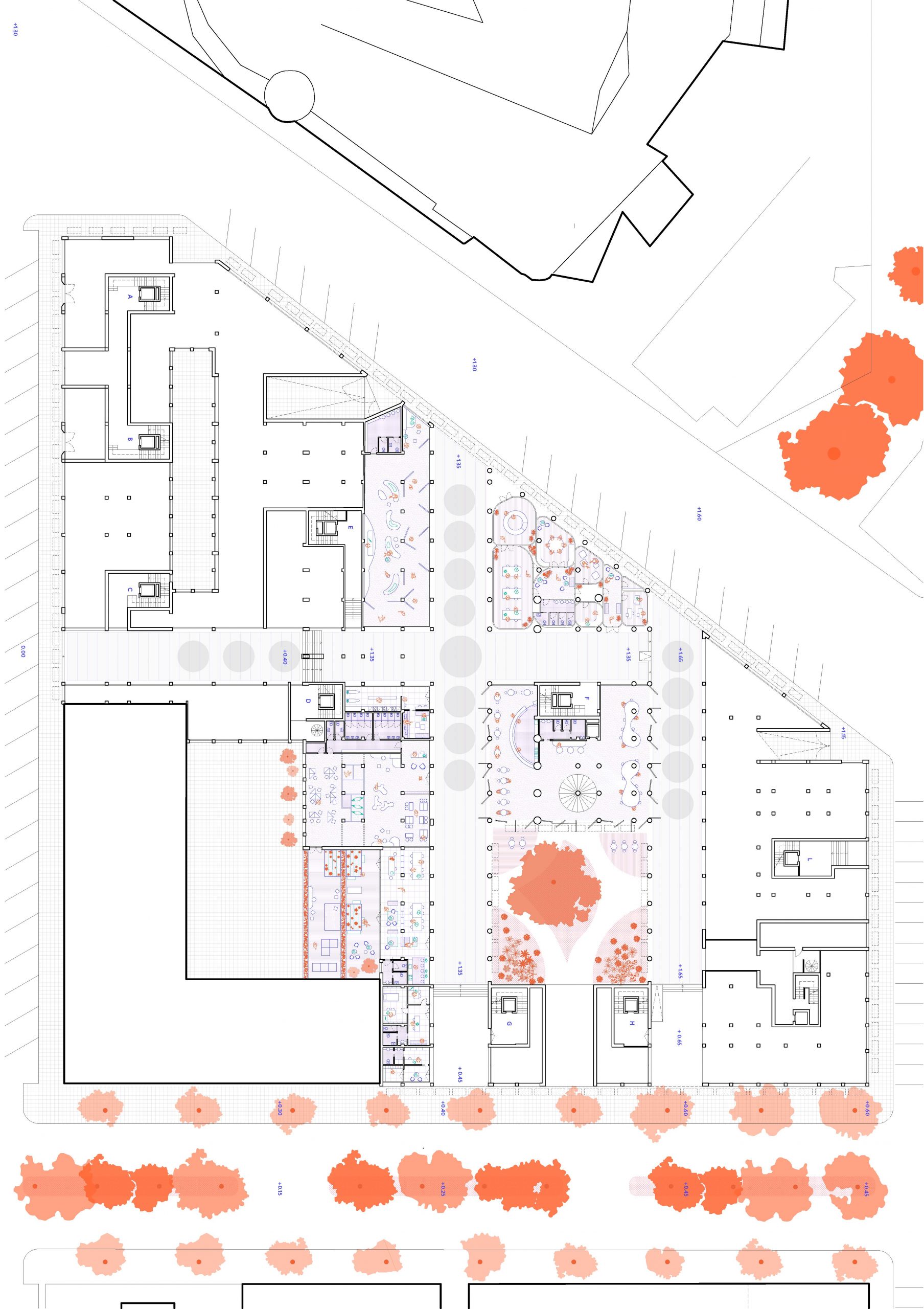
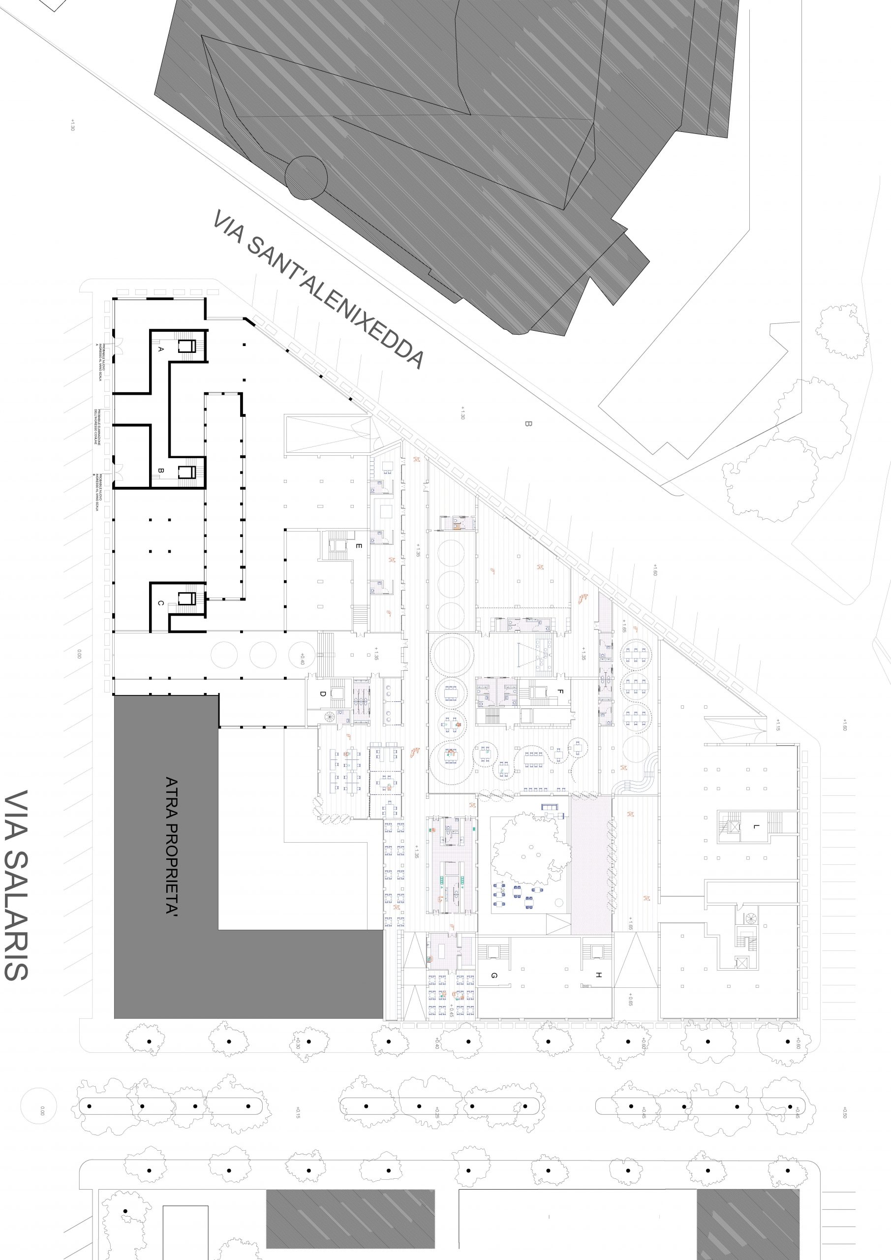
L’edifico oggetto di indagine sono le Gallerie Ormus, un complesso di cinque palazzine progettato dall’architetto Giulio Minoletti insieme all’ingegnere Giuseppe Chiodi. Costruiti tra 1963 e il 1967, gli edifici occupano l’isolato trapezoidale compreso tra via Dante, via Sant’Alenixedda, via Francesco Salaris e Piazza Giovanni XXIII. Si tratta di un lotto inserito in un contesto urbano appartenente alla prima periferia di Cagliari, frutto delle espansioni urbanistiche del dopoguerra e oggetto, a cavallo degli anni Duemila, di importanti interventi di rivalorizzazione dell’area come il Parco della Musica a nord e il Teatro Lirico a ovest. La conformazione a pettine delle palazzine viene unificata tramite la realizzazione di un basamento comune a doppia altezza che costituisce una “piastra” pubblica su cui si innestano le torri residenziali. I sei piani destinati alle abitazioni sono infatti sovrapposti ad uno zoccolo sporgente dedicato a uffici, attività commerciali e ristorative. Tale zoccolo non è concepito come un blocco compatto ed ermetico che disegna un recinto tra le palazzine e i quartieri circostanti ma è un elemento poroso grazie alla realizzazione di due patii e di tre gallerie – perpendicolari tra loro – che lo attraversano e consentono il superamento del dislivello altimetrico che collega le vie perimetranti il lotto. La ricerca di permeabilità e trasparenza si identifica anche nei grandi lucernari a cupola che filtrano la luce all’interno delle gallerie e donano ritmo al percorso.
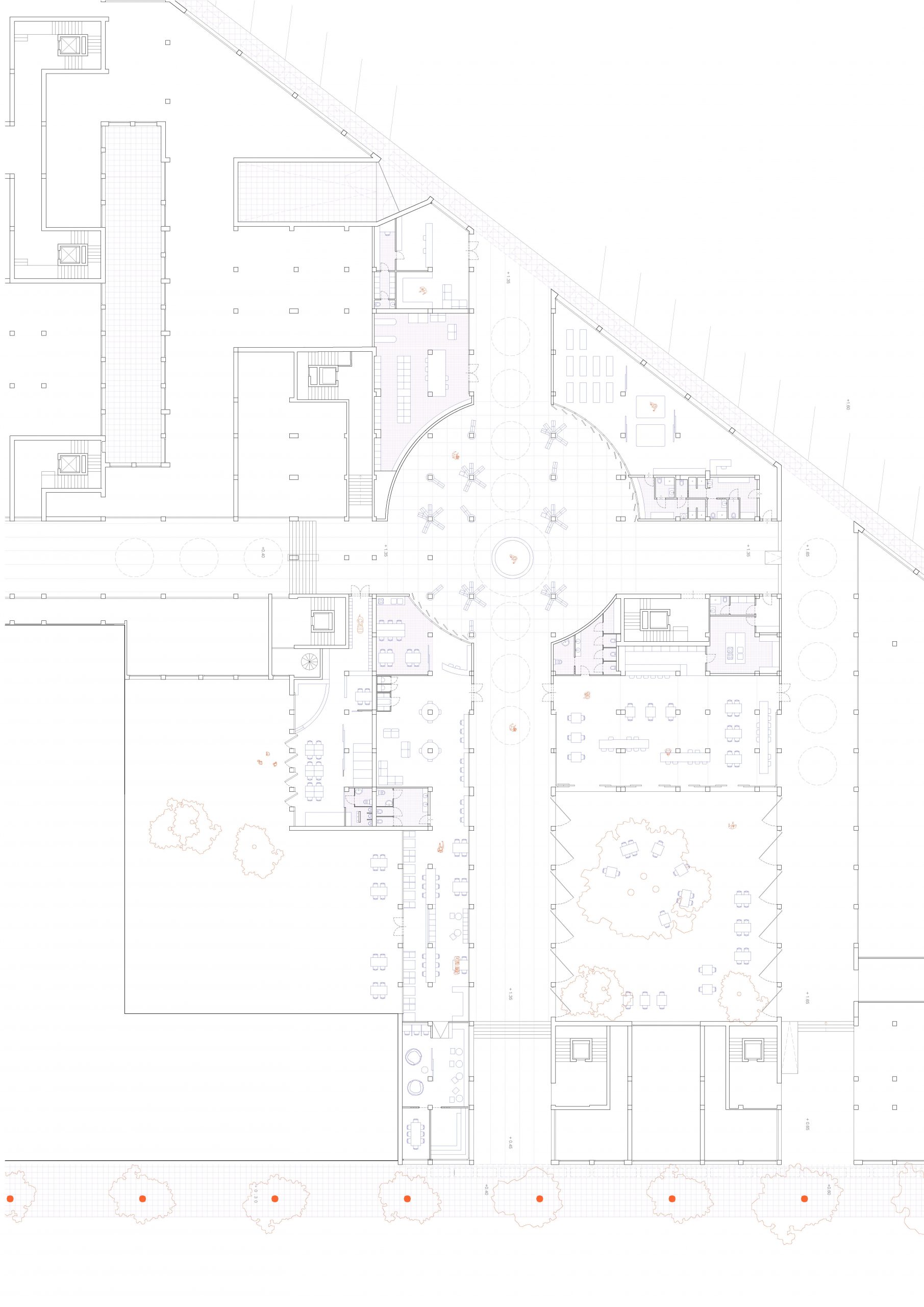
L’area sottoposta all’intervento progettuale si focalizza su una porzione del piano terra caratterizzata dal patio centrale e interessata dal passaggio delle tre gallerie – per un totale di 1400 mq – e sul livello di copertura del basamento, immaginando delle possibili operazioni in sezione che connettano i due livelli e che consentano quindi la riattivazione della piastra. Le ulteriori azioni consentite sull’esistente hanno previsto la rimozione di superfetazioni, la sostituzione dei lucernari – conservandone le forometrie – l’eliminazione di pareti interne non portanti, la trasformazione della superficie delle gallerie per creare nuovi assi direzionali o l’annessione di parte delle stesse per aumentare la superficie degli spazi interni con conseguenti modifiche nei percorsi di collegamento all’interno della piastra.
Successivamente ad un sopralluogo, gli studenti, divisi in gruppi, hanno prima effettuato un’analisi urbana mappando le attività presenti – sia all’interno del lotto sia negli isolati confinanti – e i loro tempi di utilizzo e, come conseguenza dell’indagine, hanno poi costruito un programma funzionale che permettesse il dialogo tra le Gallerie Ormus e il tessuto urbano circostante. Ciascun gruppo ha declinato spazialmente la propria idea di luoghi di lavoro e di cura adottando una strategia progettuale mirata all’ottenimento del work-life balance.
L’approccio di tutti e cinque i progetti che mirano alla riattivazione del piano terra delle gallerie converge su un’idea comune: trasformare la piastra minolettiana in cerniera pubblica che ricuce le torri residenziali al quartiere. Le gallerie, da corridoi inerti e degradati, diventano infrastrutture di relazione: “Strale” aggiunge come loro terminale un anfiteatro verso il Teatro Lirico; “Lanterna urbana” ne dissolve i confini con ampie pareti vetrate; “Giardino introflesso” apre un patio verde che devia i percorsi creando nuove connessioni; “Trame” ingloba tratti di galleria per creare scenari mobili; “Oculus” utilizza le stesse gallerie come cardo e decumano e vi innesta una piazza centrale.
Su questo fil rouge di permeabilità, l’obiettivo è ridurre lo scarto quotidiano tra sfera produttiva e riproduttiva, offrendo servizi che semplificano le attività di cura. Ogni gruppo sperimenta delle strategie progettuali che lavorano sul concetto di prossimità: coworking accanto ad asili e aree baby; lavanderie, portinerie e locker-rooms che alleggeriscono le incombenze domestiche sono spesso raggruppati assieme; gli spazi per la terza età sono contigui ad ambulatori e ambienti che forniscono ulteriori servizi sanitari; bistrot e cucine collettive che dilatano la pausa in socialità sono abbinate a spazi verdi e orti urbani.
Spazialmente, pareti mobili e trasparenti e volumi disposti in enfilade permettono di fondere tempo produttivo e tempo di cura. Ne scaturisce un impianto programmatico comune che, per addizione di micro‑luoghi connessi, restituisce continuità alle gallerie storiche e rende la piastra un dispositivo civico permeabile, flessibile e intergenerazionale. Attraverso queste prospettive, le Gallerie Ormus diventano un laboratorio quotidiano di innovazione sociale, capace di innescare pratiche collettive autogestite e micro‑economie di vicinato.
Carola D’Ambros









